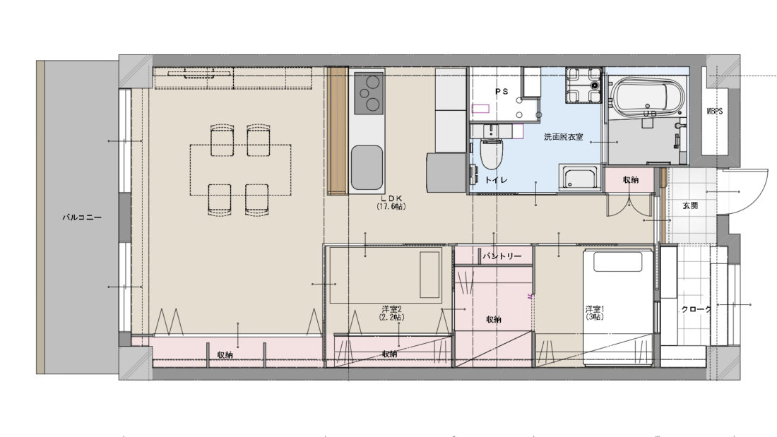
間取り変更・スケルトン 絶妙なリビング、居室と収納スペースの配置
玄関脇にクローク、廊下にパントリー、居室とリビング1面の壁を全て収納に。大容量の収納スペースを取りつつ、居室とリビングを絶妙なバランスで配置して、広々と使える極上フローリングの快適な空間を実現しました。

壁向きキッチンを対面に変えて、コンロ前をガラスにすることで、キッチンからリビング全体を見渡せるように。娘様ご家族が遊びにきて、キッチンに立ちながら会話を楽しむことができます。リビングのクロスは白を基調として、1面アクセントクロスにしました。

もともとダイニングと2部屋あったスペースを広いリビングと居室に間取り変更。居室はL字型の上吊戸を普段は開けておきリビングの一部として使っています。極上のフローリングで最高の感触を堪能できる居心地のいい空間に。

キッチンは各メーカーの良い製品を採用。キッチンは清掃性を考慮してクリナップのステンレス製シンク、レンジフードはタカラスタンダードのホーロー製、水栓は使い勝手のよいタカギの蛇口一体型浄水器に。コンロは火事のリスク低減でIHに。キッチン面材はリビングの家具とも調和するウッド調にしました。

広々とした浴槽と清掃性に優れたタカラスタンダードのホーローシステムバスを採用。高級感かつ清掃性の良いキープクリーンフロアでお手入れカンタン。高齢化に備えて手摺りも設置。2重床採用で水回り配置変更ができ、浴室サイズを1116から1416に大幅サイズアップ!

見た目・使い勝手・清掃性の三拍子揃ったTOTOレストパルF。床には継ぎ目のないシート状の床材をチョイス。トイレが床から浮いているのでいつもを綺麗に保てられて、お孫様が床を這い這いしても安心です。

玄関横の居室スペースを縮小してクロークにしたことで、外出時に必要なものや来客の荷物を室内に持ち込む必要がなくなり、室内がスッキリ。共用廊下に面しているが、このクロークが干渉地となり、居室のプライベート感が向上しました。
お二人の娘様がご結婚された後、ご夫婦で2階建ての戸建に住まわれていましたが、お孫様たちと過ごす時間を増やせるよう、娘様ご家族のお近くのマンションをご購入されて引越しをすることになりました。南面に面しており、富士山が良く見える絶好の展望のお部屋でしたが、築38年の古い構造のマンションだったため、快適な生活を送るには全面リフォームが必要でした。N様のご要望をお伺いし、優先度をつけて狭くて深い浴槽を大きくしたり、多趣味の奥様の持ち物がすっきり収まる収納、高齢化に備えた段差フリーなど、いろいろ検討を重ねてプランを作成していきました。結果、大変ご満足頂ける住まいになりました。
キッチン クリナップ(ステディア)
浴室 タカラスタンダード(伸びの美浴室)
洗面台 TOTO(オクターブスリム)
トイレ TOTO(レストパルF)
サッシ YKKap(マドリモ)
フローリング 朝日ウッドテック(ライブナチュラルプレミアム ラスティック)
室内扉・収納用建具 パナソニック(VERITIS)
照明 ODELIC (ダウンライト 調光調色)
キッチン:997,000
浴室:870,000
洗面所:210,000
トイレ:200,000
内装:860,000
その他:10,043,000
※表示されている価格帯および本体価格は施工当時のもので、現在の価格とは異なる場合があります。
地元密着で信頼できる会社との評判を聞き、実際に会社を訪問してみて、接客の態度や要望に応えるプランの提案をしてくれました。当初想定されていた予算を超えたが、費用を抑えるところと費用を掛けてでも良いグレードにするものを一緒に検討してご満足できるリフォームができました。
玄関入って廊下を挟んで右側に洗面所、浴室、トイレ。左側に居室、その先の室内扉の向こう側にキッチンとダイニング。居室2部屋の間取りで、限定的な収納、分断された間取り、単板の窓による夏、冬の外気の影響など、生活にするには不便なお住まい。コンクリートに床直貼りや配管の制約から、バルコニー窓枠は床から10㎝の段差、浴室ドアは床から33㎝の高さにあり、高齢化に向けて転倒リスクが大きい環境でした。
床を2重床にして窓や浴室の段差を最小化して転倒リスクを減らしました。また、窓を全て複層ガラスに変更し、玄関すぐのところに室内扉を移して、室内を全て同じ温度にできたことによるヒートショックの低減化を実現。玄関脇のクローク、居室側の全面収納や廊下にパントリーを設置。大容量の収納スペースを確保したことで収納物があふれないすっきりとした環境で、極上のフローリングを堪能!住設機器は使い勝手や清掃性をポイントに選定しました。
営業担当:牧野公重
玄関脇にクローク、廊下にパントリー、居室とリビング1面の壁を全て収納に。大容量の収納スペースを取りつつ、居室とリビングを絶妙なバランスで配置して、広々と使える極上フローリングの快適な空間を実現しました。
対面キッチンや広々としたリビング、感触が最高のフローリングでお子様やお孫様との楽しい時間を過ごせる空間に。大容量の収納スペースにより床にものがなく、這い這いをするお孫様も安心して過ごせます。洗面所とトイレも常に清潔にされていて、ご家族様全員にご好評です。
リフォーム前のコンクリート床直貼り床から2重床へ変更したことで、玄関の段差55mm→3mm、浴室段差325mm→77mm、バルコニー窓段差105mm→3mmに。バリアフリーと段差最小化を実現。水回りの位置も2重床により変更できるようになり、対面キッチンや浴室サイズを1116から1416に大幅サイズアップ!
壁向きキッチンを対面に変えて、コンロ前をガラスにすることで、キッチンからリビング全体を見渡せるように。娘様ご家族が遊びにきて、キッチンに立ちながら会話を楽しむことができます。リビングのクロスは白を基調として、1面アクセントクロスにしました。
もともとダイニングと2部屋あったスペースを広いリビングと居室に間取り変更。居室はL字型の上吊戸を普段は開けておきリビングの一部として使っています。極上のフローリングで最高の感触を堪能できる居心地のいい空間に。
キッチンは各メーカーの良い製品を採用。キッチンは清掃性を考慮してクリナップのステンレス製シンク、レンジフードはタカラスタンダードのホーロー製、水栓は使い勝手のよいタカギの蛇口一体型浄水器に。コンロは火事のリスク低減でIHに。キッチン面材はリビングの家具とも調和するウッド調にしました。
広々とした浴槽と清掃性に優れたタカラスタンダードのホーローシステムバスを採用。高級感かつ清掃性の良いキープクリーンフロアでお手入れカンタン。高齢化に備えて手摺りも設置。2重床採用で水回り配置変更ができ、浴室サイズを1116から1416に大幅サイズアップ!
見た目・使い勝手・清掃性の三拍子揃ったTOTOレストパルF。床には継ぎ目のないシート状の床材をチョイス。トイレが床から浮いているのでいつもを綺麗に保てられて、お孫様が床を這い這いしても安心です。
玄関横の居室スペースを縮小してクロークにしたことで、外出時に必要なものや来客の荷物を室内に持ち込む必要がなくなり、室内がスッキリ。共用廊下に面しているが、このクロークが干渉地となり、居室のプライベート感が向上しました。